Atelier 404

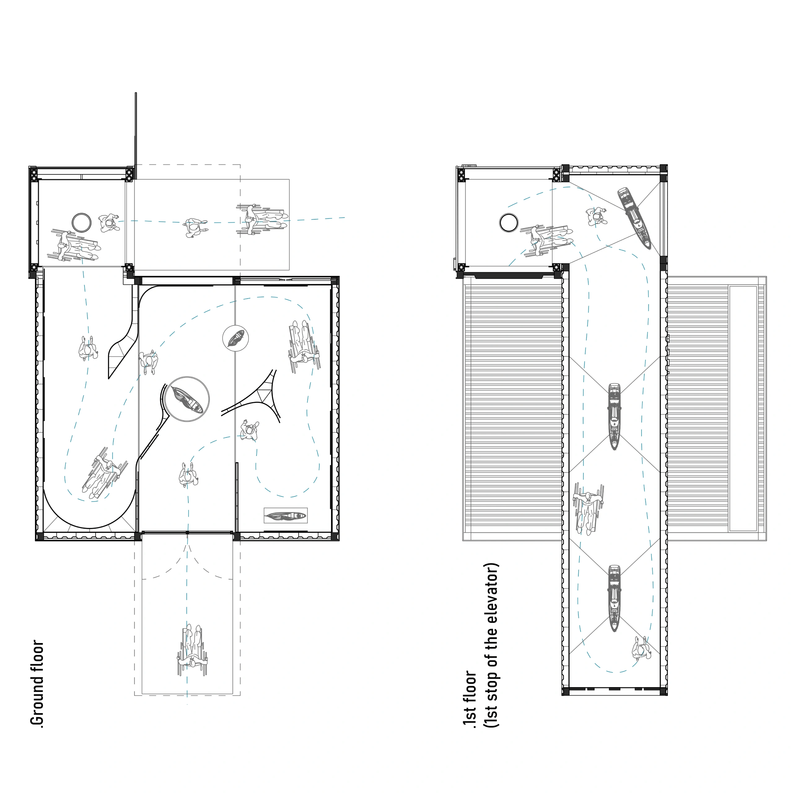
Nautical Micro Museum

TIP PROIECT

Concurs

PROGRAM

Muzeu

LOCALIZARE

Veneția, Italia

SUPRAFAȚĂ

120 mp

DATĂ

2022

STATUS

Concept

Atelier 404